Ficha Técnica

Emprendimiento: Ana del Mar® Beach Apartments
Destino: Vivienda de ocupación estacional multifamiliar
Perfil: Estancia vacacional
Superficie total: 900 m2
Superficie total construida: 1.093 m2
Unidades funcionales: 9
Inicio de la construcción: Octubre 2011
Fecha estimada de entrega: Diciembre de 2013

Comodidades

Superficie por unidad: 80,4 m2

Distribución
Estar-Comedor 25 m2
Cocina 12 m2
Baño 4.5 m2
Toilette 4 m2
Dormitorio Principal 10 m2
Estar intimo 10 m2
Expansión cubierta 11,25 m2
S.U.M. General 50 m2

Ana del Mar | Ficha Tecnica

PLANTA GENERAL
haga click aqui para ampliar el plano 1

Planta General

PLANTA BAJA Y PRIMER PISO
1 Piso: Unidades 1-4-7
2 Piso: Unidades 2-5-8

Ana del Mar | Ficha Tecnica

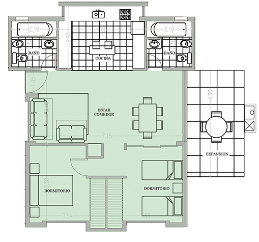
Planta Tipología 1
haga click aqui para ampliar el plano 3

Planta TIPOLOGIA 1

Superficie total: 91,65 m2
Superficie cubierta: 80,40 m2
Superficie semicubierta: 11,25 m2
Cochera: 2,50 x 5 m
Baulera: 1,08 x 2,20

Ana del Mar | Ficha Tecnica

Planta Tipología 2
haga click aqui para ampliar el plano 5

Planta TIPOLOGIA 2

Superficie total: 91,65 m2
Superficie cubierta: 80,40 m2
Superficie semicubierta: 11,25 m2
Cochera: 2,50 x 5 m
Baulera: 1,08 x 2,20

Más información:
info@anadelmar.com.ar
Perfil de los profesionales
Start Up 2011. All right reserved. Ana del Mar ®
Mignogna&Asoc. Diseño Gráfico | Gonzalo Mattia Web Master